倉賀野の賃貸店舗(建物一部)!|株式会社Room’s
※事業用物件は 賃料・共益費・管理費等が税別表記です
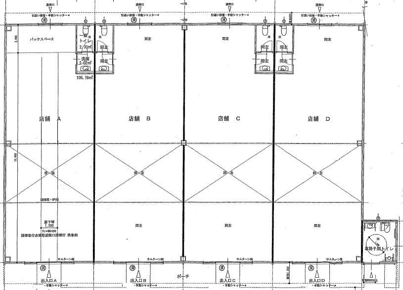
【スタッフからのイチオシポイント!】この夏前橋長瀞線沿いに誕生!テナント募集中です全4テナント募集中です。角区画Aは35.2万円、Dは38.5万円の賃料となります。スタッフ用駐車場は10台(1台2,200円)、来客用駐車場は40台、全テナント共用で使用できます。
群馬県高崎市綿貫町664-20【JR高崎線 倉賀野駅徒歩35分】にある賃貸店舗(建物一部)です。新築築の1階建ての店舗(建物一部)で、物件は1階建ての1階部分です。物件の広さは110.5m2です。 ※物件のもっと詳しい内容や入居時期、諸条件のご相談など、ホームページには掲載が間に合わず載せきれていない情報もございます。 気になることが御座いましたらお気軽にメールにてお問い合わせください。
※各種情報と差異がある場合は現況優先となります
この物件に似た物件をチェック!閲覧した物件の履歴最近検索した条件一覧
| ||||||||||||||||||||||||||||||||||||||||||||||||||||||||||||||||||||||||||||||||
| ▲ページのTOPへ戻る | ||||||||||||||||||||||||||||||||||||||||||||||||||||||||||||||||||||||||||||||||

〒370-0052 群馬県高崎市旭町46-2 高砂ビル高崎西口 1-A
営業時間:10:00~17:00
定休日:毎週水・日曜日 / 年末年始